Ricerca avanzata
Newsletter
Login
Wishlist
(0)
Toggle navigation
La casa editrice
Catalogo
Novità
Autori
Diario
Home
>
Catalogo
>
Manuale professionale di scenografia e scenotecnica
> Tav. 35
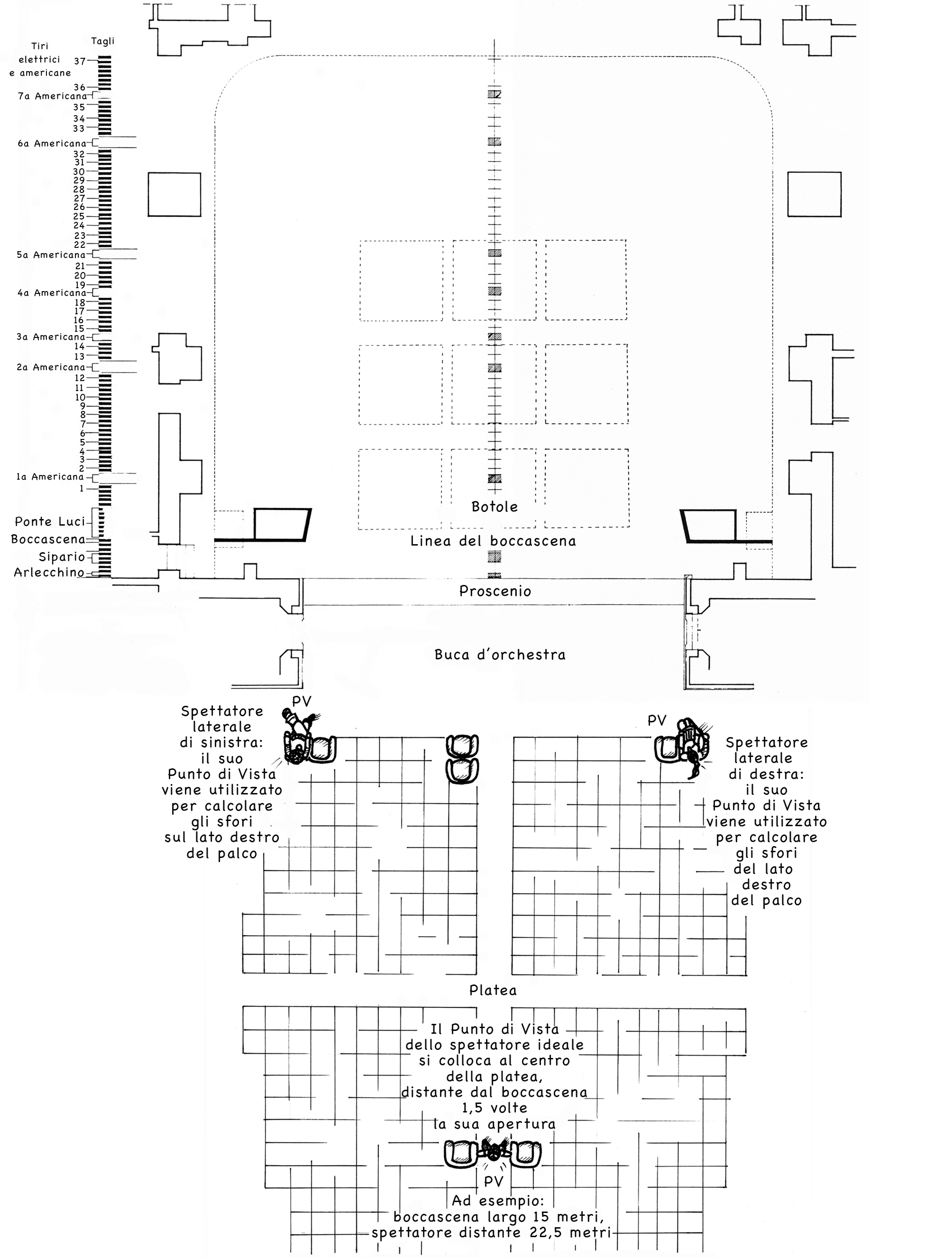
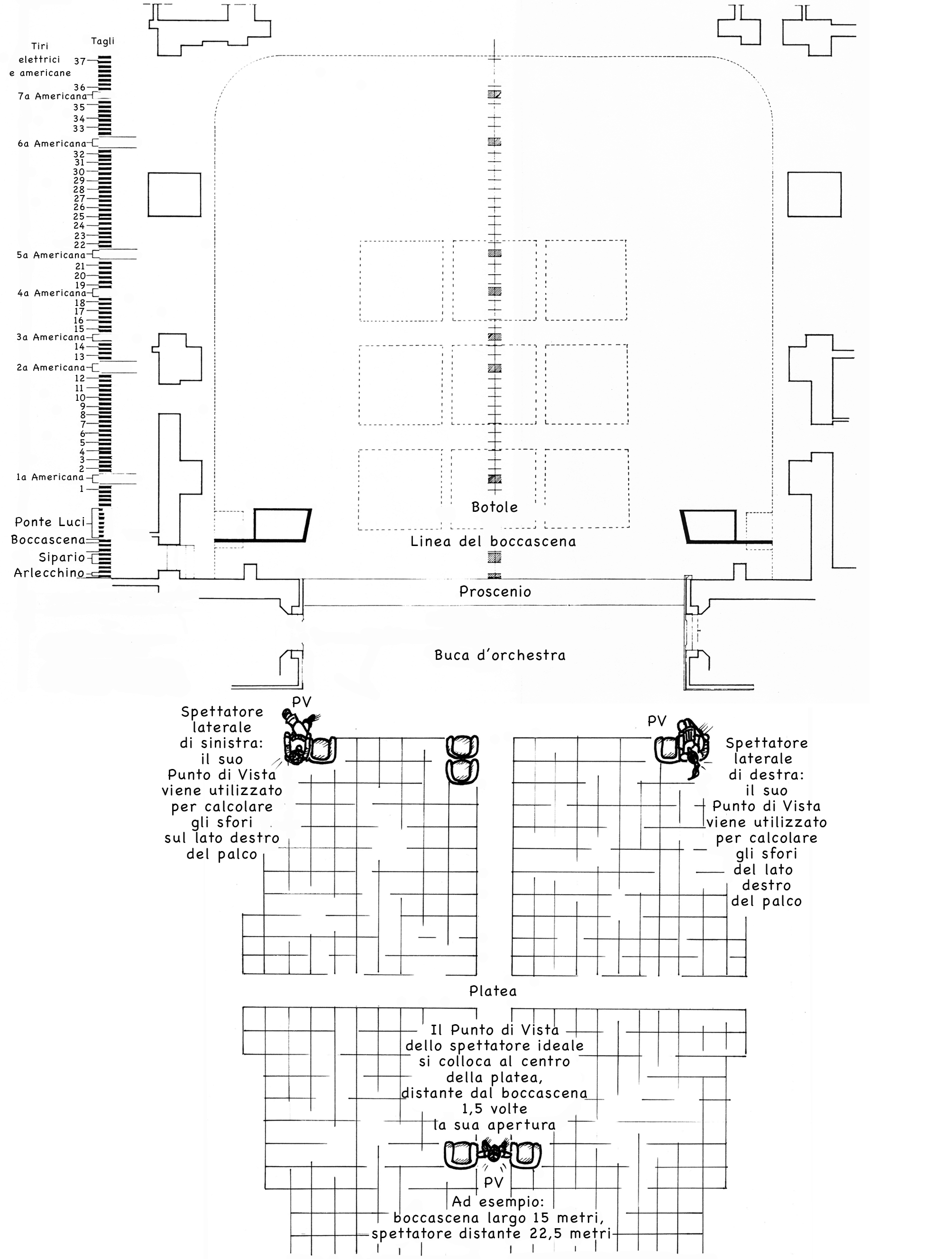
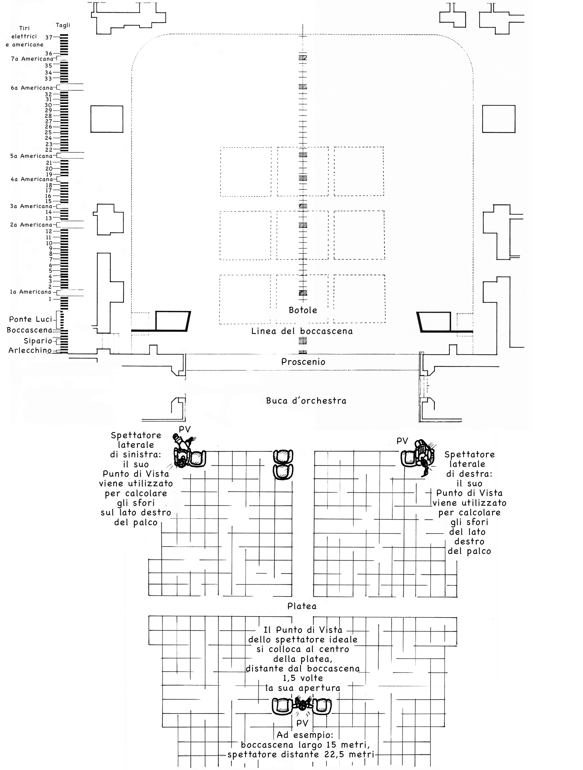
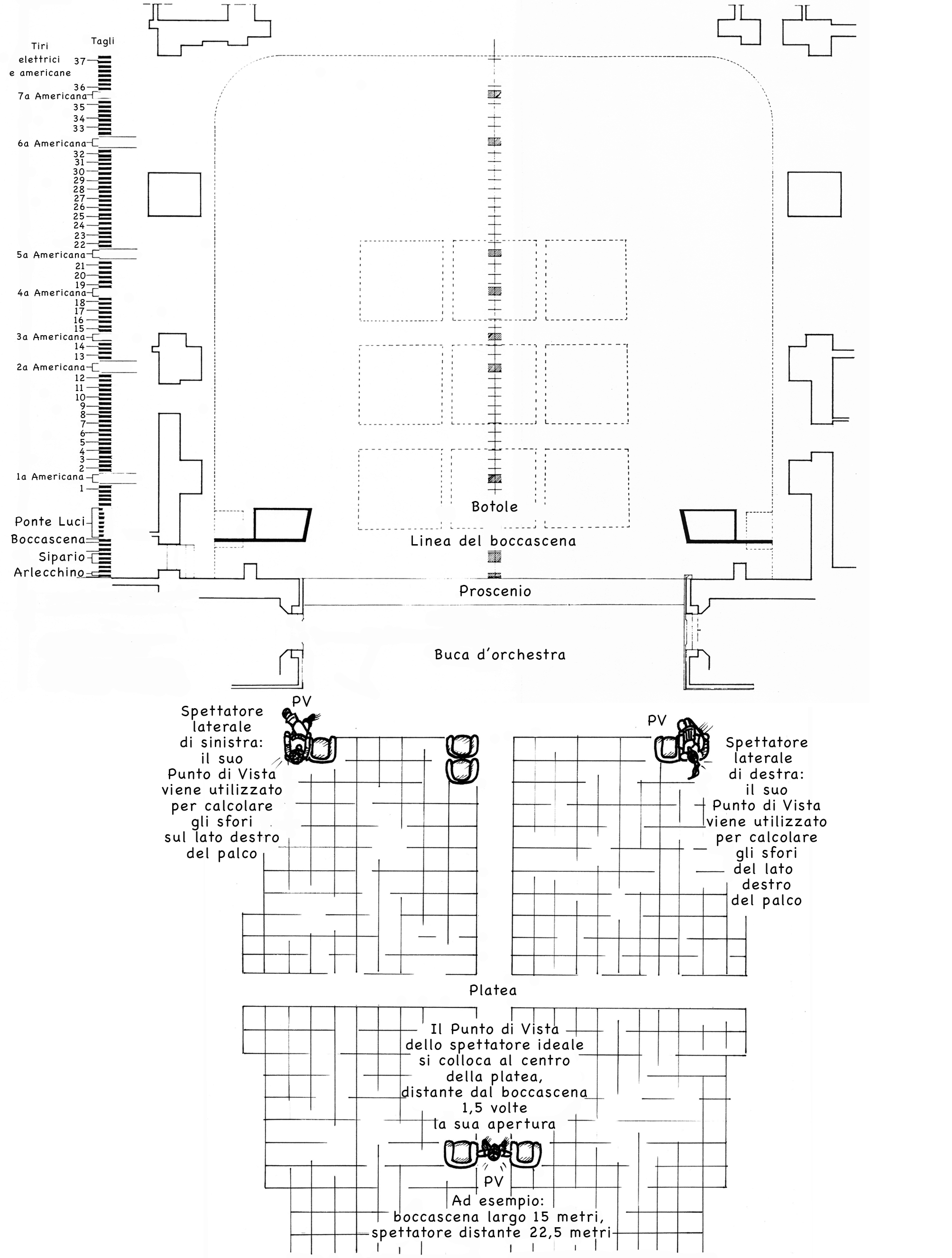
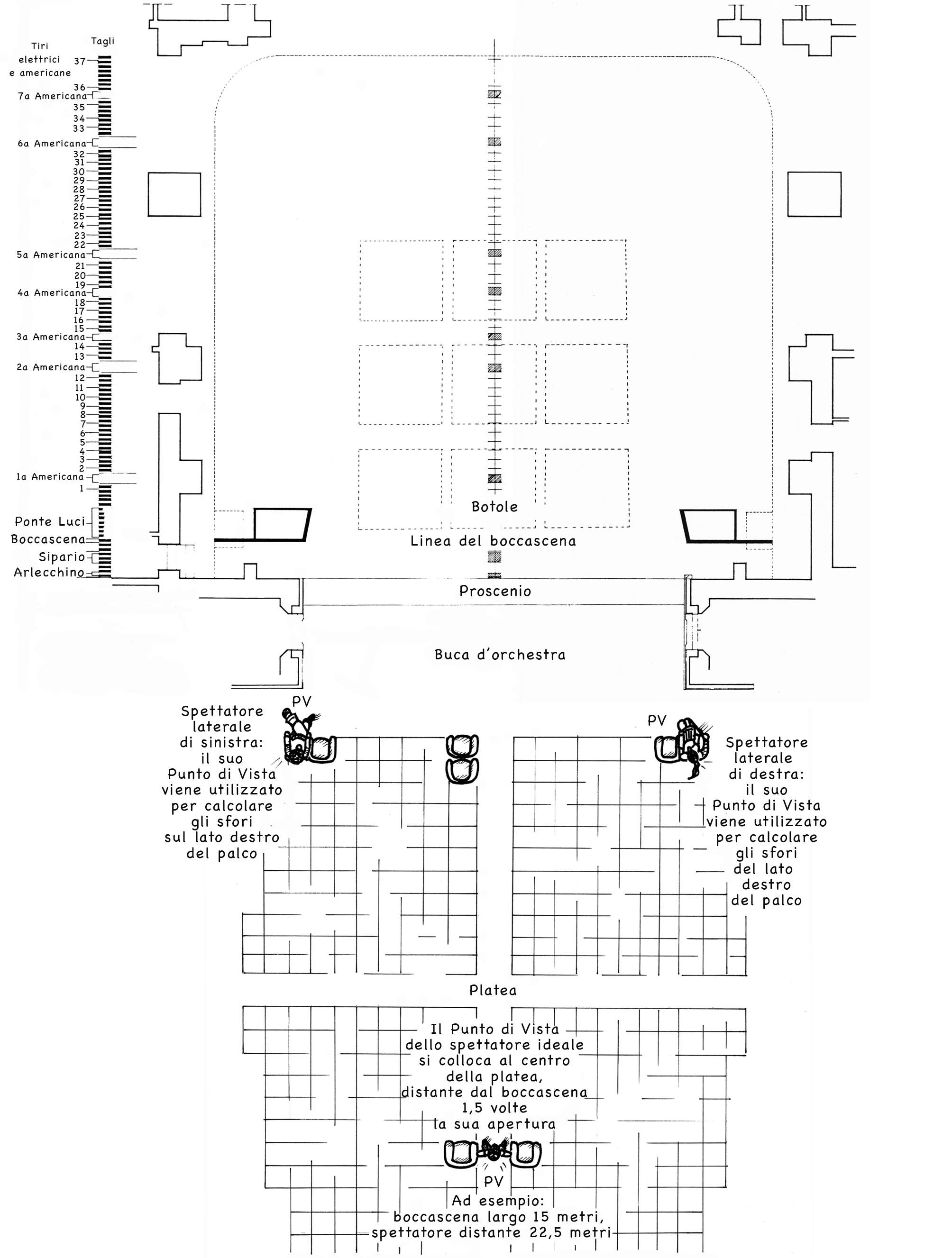
Tav. 35
Scarica il file
Il volume
Benedetta Dalai
Manuale professionale di scenografia e scenotecnica
Il progetto scenico, il disegno tecnico, la realizzazione in laboratorio
Manuali
, n. 183
2017, pp. 176,
ISBN
: 9788875273484
€ 25,00
-5%
€ 23,75
Acquista da
Acquista da
Acquista da
Aggiungi a wishlist
Aggiungi a wishlist
Aggiungi a wishlist
Rimuovi da wishlist
Rimuovi da wishlist
Rimuovi da wishlist
Vai alla scheda libro
Vai alla scheda libro
Vai alla scheda libro
Tweet
Like
Pin
+
StoreDB
Puoi acquistare questo volume da:
IBS.it
Amazon.it